Resolução Contran nº 323 de 17/07/2009 – Revogada pela Resolução nº 953 de 28/03/2022

Estabelece os requisitos técnicos de
fabricação e instalação de protetor lateral
para veículos de carga.

O CONSELHO NACIONAL DE TRÂNSITO – CONTRAN, usando da competência que lhe confere o inciso I do art. 12 da Lei n° 9.503, de 23 de setembro de 1997, que institui o Código de Trânsito Brasileiro – CTB, e conforme o Decreto n°4.711, de 29 de maio de 2003, que dispõe sobre a Coordenação do Sistema Nacional de Trânsito, e

Considerando a necessidade de aperfeiçoar e atualizar os requisitos de segurança
para os veículos de carga nacionais e importados,

Considerando as conclusões apresentadas no bojo do Processo administrativo no 80001.007960/2009-76,

RESOLVE:

Art. 1º Os caminhões, reboques e semi-reboques com peso bruto total PBT superior a 3.500 kg (três mil e quinhentos quilogramas) novos, saídos de fábrica, nacionais e importados a partir de 1º de janeiro de 2011, somente poderão ser registrados e licenciados se estiverem dotados do protetor lateral que atenda às especificações constantes do Anexo desta Resolução.

Parágrafo único. Os veículos de que trata o “caput” deste artigo, cujas características originais da carroçaria forem alteradas, ou quando neles for instalado algum tipo de implemento, a partir de 1º de janeiro de 2011, também deverão atender às especificações constantes do Anexo desta Resolução.

Art. 2º Não estão sujeitos ao cumprimento desta Resolução os seguintes veículos:

I – Caminhões tratores;

II – Carroçaria ou plataformas de carga que estejam a até 550 mm de altura em
relação ao solo;

III – Veículos concebidos e construídos para fins específicos e onde, por razões
técnicas, não for possível prever no projeto a instalação dos protetores laterais;

IV – Veículos inacabados ou incompletos;

V – Veículos e implementos destinados à exportação;

VI – Viaturas militares;

VII – Aqueles que possuam na carroçaria o protetor lateral incorporado ao projeto
original do fabricante

Parágrafo único. O órgão máximo executivo de trânsito da União analisará e decidirá quais veículos se enquadram no inciso III.

Art.3º A não observância dos preceitos desta Resolução sujeita o infrator às penalidades previstas nos incisos IX ou X do artigo 230 do Código de Trânsito Brasileiro.

Art.4º Esta Resolução entrará em vigor na data da sua publicação.

Alfredo Peres da Silva
Presidente

Marcelo Paiva dos Santos
Ministério da Justiça

Rui César da Silveira Barbosa
Ministério da Defesa

Rone Evaldo Barbosa
Ministério dos Transportes

Valter Chaves Costa
Ministério da Saúde

Carlos Alberto Ferreira dos Santos
Ministério do Meio Ambiente

Elcione Diniz de Macedo
Ministério das Cidades

José Antônio Silvério
Ministério da Ciência e Tecnologia

ANEXO

1 Escopo

Estabelecer os requisitos para o protetor lateral de caminhões e rebocados, com peso bruto total (PBT) acima de 3 500 kg.

Este Anexo não se aplica a:
a) caminhões-tratores;
b) carroçarias ou plataformas de carga que estejam a uma altura em relação ao solo de até 550 mm;
c) veículos concebidos e construídos para fins específicos e onde, por razões técnicas, não for possível prever em projeto a instalação de protetores laterais.

2 Finalidade

Evitar ou minimizar colisões, impedindo que motos, bicicletas ou veículos de pequeno porte penetrem na parte inferior e sejam esmagados pelas rodas do caminhão ou do rebocado.

3 Requisitos

3.1 O protetor lateral não deve ultrapassar o plano correspondente à largura do veículo. A parte principal da superfície exterior do protetor lateral não deve estar a mais de 120 mm para dentro do plano correspondente à largura do veículo. A extremidade frontal deve ser dobrada para dentro, entre 50 mm e 100 mm, nos primeiros 100 mm (ver Figura 1). As extremidades do protetor lateral, nos últimos 250 mm próximos aos pneus, devem estar no máximo a 30 mm para dentro em relação ao plano correspondente a largura do veículo ou, quando não houver esta referência, 30 mm à face externa do pneu medido na altura do protetor lateral (ver Figura 1). Quando a cabina do veículo for mais larga que a carroçaria, deve prevalecer a largura da carroçaria.

    Figura 1 — Exemplo de protetor lateral – Vista superior (dimensões em mm)

    3.2 A superfície externa do protetor lateral deve ser lisa. Descontinuidades no protetor lateral devem ser aceitas, desde que devidas a componentes do próprio veículo. As partes adjacentes podem sobrepor-se, desde que a superfície de sobreposição esteja voltada para a parte traseira ou para baixo. A folga máxima longitudinal permitida deve ser de 25 mm (ver Figura 2).

    Figura 2 — Folgas e concordâncias do protetor lateral com componentes do veículo –
    Vista superior (dimensões em mm)

    3.2.1 Parafusos e rebites com cabeça, sem arestas cortantes, podem sobressair da superfície externa do protetor lateral em dimensão não superior a 10 mm. Esta tolerância é válida também para outras peças, desde que lisas ou arredondadas. Todas as arestas ou cantos externos devem ter raio de acabamento não inferior a 2,5 mm.

    3.2.2 Havendo a presença de caixa de acessórios (ferramentas, rancho etc.) e se sua face externa não estiver no mesmo plano do protetor, deve ser necessária uma concordância entre as superfícies (ver Figura 2).

    3.2.3 No local do pneu sobressalente, quando for necessária a colocação do protetor lateral e não for possível o modelo fixo, deve ser aceito o protetor lateral basculante. Os demais requisitos devem ser atendidos.

    3.3 O protetor lateral pode ser constituído por uma superfície contínua, por barras horizontais ou por uma combinação de superfícies e barras. Caso o protetor seja constituído por barras, estas podem ter qualquer forma de seção transversal com altura não inferior a 100 mm, e não devem estar separadas por mais de 300 mm (ver Figura 3).

    Figura 3 — Exemplo de protetor lateral – Vista lateral dimensões em mm)

    3.4 A posição da aresta frontal deve ser:
    a) em um caminhão, não mais do que 300 mm para trás de um plano vertical que seja perpendicular ao plano longitudinal do veículo e tangencie a superfície externa do pneu localizado imediatamente à frente do protetor lateral (ver Figura 4);
    b) em um reboque com barra de tração ou semi-reboque sistema autodirecional, não mais do que 500 mm para trás do plano definido em a) (ver Figura 5);
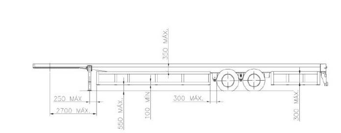
    c) em um semi-reboque, não mais do que 250 mm para trás do plano transversal médio do suporte vertical, se ele estiver presente, mas em nenhum caso a distância entre a aresta frontal do protetor lateral e um plano transversal que passe pelo centro do pino-rei, quando este estiver em sua posição mais traseira, deve ser maior do que 2 700 mm (ver Figura 3).

    3.4.1 A aresta frontal deve consistir em um elemento vertical contínuo que se estenda por toda a altura do protetor.A face externa desse elemento deve ter uma largura mínima de 100 mm.

    3.4.2 Em um caminhão no qual a dimensão de 300 mm, definida em 3.4a), interfira na cabina, o protetor lateral deve ser construído de forma que a folga entre a sua aresta frontal e os painéis da cabina não exceda 100 mm e, se necessário, deve ser voltada para dentro com um ângulo que não exceda 45º. Neste caso, o estabelecido em 3.4.1 não é aplicável.

    3.4.3 Em um caminhão no qual a dimensão de 300 mm, definida em 4.4a), interfira na cabina e a folga entre a aresta frontal do protetor lateral e os painéis da cabina for menor do que 100 mm por opção do fabricante, os requisitos de 3.4.2 devem ser atendidos.

    3.5 A distância entre a aresta traseira do protetor lateral e o plano vertical transversal que tangencia a parte mais saliente do pneu da roda imediatamente atrás da referida aresta não deve exceder 300 mm (ver Figura 3). Não é necessário um elemento vertical contínuo.

    3.6 O protetor lateral, na região do balanço traseiro, em sua terça parte final, pode admitir alturas em relação ao plano de apoio das rodas maiores que 550 mm para adequar o ângulo de saída.

    3.7 A altura da borda inferior do protetor lateral, medida com o veículo com sua massa em ordem de marcha, não deve, em nenhum ponto, ser superior a 550 mm em relação ao plano de apoio das rodas (ver Figura 3).

    3.8 A distância da borda superior do protetor lateral à face inferior da base do assoalho, medida no plano vertical tangente à superfície externa dos pneus ou em um plano paralelo a este, não deve exceder 350 mm (ver Figura 3), exceto nos casos descritos em 3.8.1 a 3.8.3.

    3.8.1 Quando o plano vertical tangente à superfície externa do protetor lateral não interceptar a estrutura do veículo, a borda superior deve estar ao nível da superfície de carga ou a 950 mm de altura em relação ao solo, prevalecendo a dimensão menor, medido com o veículo com sua massa em ordem de marcha (ver Figura 6).

    3.8.2 Quando o plano vertical tangente à superfície externa do protetor lateral interceptar a estrutura do veículo a uma altura maior do que 1 300 mm acima do solo, a borda superior do protetor lateral não deve ficar a menos de 950 mm de altura em relação ao solo (ver Figura 7).

    3.8.3 Em um veículo especialmente projetado e construído e não meramente adaptado para o transporte de contêineres ou tanques, ou então de caixa desmontável, a superfície superior do protetor lateral deve ser determinada conforme 3.8.1 e 3.8.2, sendo estes equipamentos considerados parte integrante do veículo.

    3.9 Para realização do ensaio, o veículo deve ser posicionado:
    a) sobre uma superfície horizontal e plana;
    b) sem carga;
    c) com o semi-reboque apoiado sobre o suporte vertical, com a superfície de carga na horizontal. Se necessário, pode ser utilizado um apoio lateral para estabilizar o semireboque durante a aplicação da carga.

    4 Requisitos específicos

    4.1 Os protetores laterais devem ser rígidos e suas fixações não devem se soltar durante a utilização normal do veículo. Os protetores laterais podem ser fabricados com qualquer material, desde que atendam aos requisitos deste anexo.

    4.2 O protetor lateral deve suportar uma força estática horizontal de 5 kN, aplicada perpendicularmente em pontos de sua superfície exterior através do centro de um dispositivo cuja face seja circular e plana, com 220 mm mais ou menos 10 mm de diâmetro. A deformação do protetor durante a aplicação da força não pode ser maior que:
    a) 30 mm nos 250 mm de comprimento nas extremidades traseira e dianteira do protetor;
    b) 150 mm nas partes restantes do protetor.

    4.3 Os resultados indicados em 4.2 podem ser definidos por intermédio de cálculos de projeto ou simulações. Este procedimento deve ser comprovado por pelo menos um ensaio prático.

    4.4 Deve haver um responsável técnico pelo projeto.

    4.5 Os protetores laterais não podem ser utilizados como base para fixação de condutores elétricos (chicotes) e tubulações pneumáticas ou de freios.

    4.6 Podem estar incorporados no protetor lateral, desde que sejam atendidas as dimensões prescritas neste anexo, os componentes fixados permanentemente ao veículo, como caixas de ferramentas, suporte para rodas sobressalentes, reservatórios de água, equipamentos específicos para fins diversos ou outros, os quais devem atender a 3.1, 3.2 e 4.2.

    4.7 Adicionalmente, os veículos especificados a seguir devem atender a 4.7.1 a 4.7.4.

    5.7.1 Os reboques ou semi-reboques telescópicos devem atender a 3.1 e 4.1 a 4.6 quando fechados totalmente. Quando o reboque ou semi-reboque estiver estendido, os protetores laterais devem atender a 3.7, 3.8, 4.1, 4.2, 4.3, 4.4 e mais 3.4, 3.5 ou 3.6, mas não necessariamente a todos. Com o conjunto no comprimento máximo, não deve haver folgas no comprimento dos protetores laterais.

    5.7.2 Veículos tanques rodoviários, com tubulação lateral para carga e descarga, devem ser equipados com protetores laterais, atendendo totalmente a 3.1. Somente devem ser permitidas modificações devidas a requisitos operacionais, após avaliação do projeto específico pelo agente de inspeção.

    5.7.3 Nos veículos rodoviários equipados com apoios extensíveis destinados a garantir estabilidade lateral em operações de carga e descarga ou outras para as quais foi concebido, os protetores laterais podem ser instalados com folgas adicionais, a fim de permitir a extensão dos apoios, desde que estes fiquem protegidos quando recolhidos.

    4.7.4 Podem ser admitidas folgas no protetor lateral para permitir a passagem e o tensionamento dos cabos de fixação nos veículos equipados com pontos de ancoragem destinados a transportes do tipo roll on–roll off.

    4.7.5 Se as laterais do veículo no seu projeto, pela forma e características dos seus componentes em conjunto, atenderem aos requisitos deste anexo, devem ser considerados como uma substituição aos protetores laterais.

    5 Marcação
    Pelo menos uma seção do protetor lateral deve ter a marcação referente ao conjunto do protetor lateral com as seguintes informações:
    a) nome de fabricante;
    b) CNPJ do fabricante.

    Vistoria Veicular

    Precisa de mais informações?